
UPDATED:
Key Details
Property Type Single Family Home
Sub Type Single Family Residence
Listing Status Active Option Contract
Purchase Type For Sale
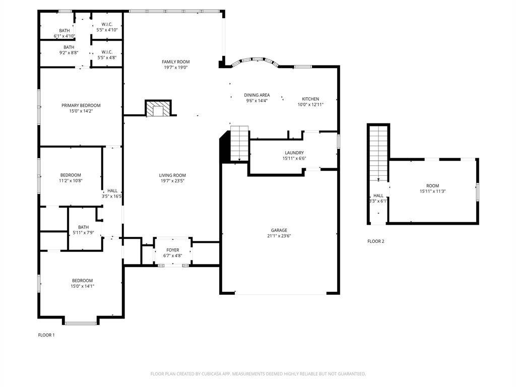
Square Footage 2,450 sqft
Subdivision Prestondale Estates
MLS Listing ID 21068497
Style Ranch,Traditional
Bedrooms 4
Full Baths 2
HOA Y/N None
Year Built 1978
Annual Tax Amount $8,224
Lot Size 8,624 Sqft
Acres 0.198
Property Sub-Type Single Family Residence
Property Description
From the inviting front porch swing under mature shade trees to the spacious interior, this home was designed for comfort, flexibility, and entertaining.
Inside, the open-concept living and kitchen area is the heart of the home, featuring granite countertops, abundant cabinet storage with pull-out drawers, and wood-look tile flooring throughout for easy maintenance. A versatile second living area provides space for gatherings, a home office, or play. Upstairs, the oversized 4th bedroom offers endless options as a media room, game room, or guest retreat.
Recent upgrades add exceptional value, including an AC-cooled garage with extensive built-in cabinets, dual workstations, and a custom workbench that's perfect for projects, storage, or even a home gym. The extended driveway includes an extra parking pad with a 30-amp hookup, ideal for a boat or RV. A powered shed with double doors offers even more storage and hobby space.
Located just minutes from Chisholm Park and Aquatic Center, NRH2O, and the BISD Fine Arts and Athletics Complex, plus shopping, dining, and highway access, this home blends small-town charm with everyday convenience.
Move-in ready, full of upgrades, and loaded with lifestyle perks. This is the one you've been waiting for!
Location
State TX
County Tarrant
Direction Please use GPS
Rooms
Dining Room 1
Interior
Interior Features Built-in Features, Cable TV Available, Flat Screen Wiring, Granite Counters, High Speed Internet Available, Pantry
Heating Electric
Cooling Central Air, Electric, Wall/Window Unit(s)
Flooring Ceramic Tile, Hardwood, Luxury Vinyl Plank
Fireplaces Number 1
Fireplaces Type Brick, Living Room, Wood Burning
Appliance Dishwasher, Disposal, Electric Cooktop, Electric Water Heater, Double Oven, Vented Exhaust Fan
Heat Source Electric
Laundry Electric Dryer Hookup, Utility Room, Full Size W/D Area, Dryer Hookup, Washer Hookup
Exterior
Exterior Feature Covered Deck, Covered Patio/Porch, Rain Gutters, RV Hookup, RV/Boat Parking
Garage Spaces 2.0
Utilities Available City Sewer, City Water, Individual Water Meter
Roof Type Composition
Total Parking Spaces 2
Garage Yes
Building
Story Two
Foundation Slab
Level or Stories Two
Structure Type Brick
Schools
Elementary Schools Porter
Middle Schools Smithfield
High Schools Birdville
School District Birdville Isd
Others
Acceptable Financing Cash, Conventional, FHA, VA Loan
Listing Terms Cash, Conventional, FHA, VA Loan
Virtual Tour https://www.propertypanorama.com/instaview/ntreis/21068497

Get More Information




